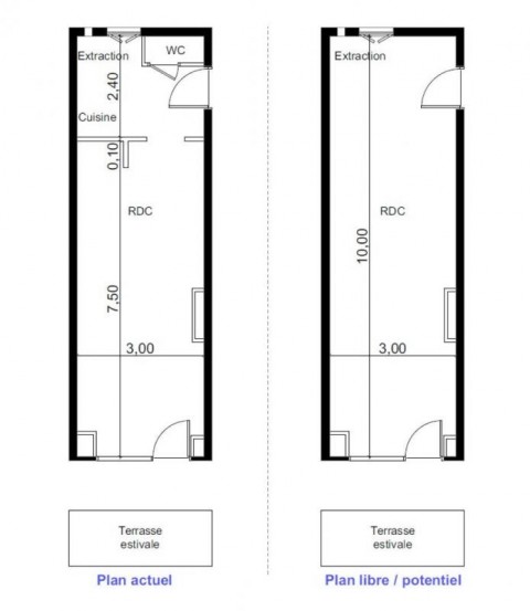
Local commercial de 330 pi2 à Paris 11ème sur un axe passant (75011) en France

Prix : 197 300 TND
Réf. : C1323670
Posté le 10 septembre 2025
Localisation : Ile-de-France / Paris / Paris 11ème
Secteur : Local commercial

Paris 11ème Paris Ile-de-France
Place des Commerces vous aide à :